Overview
Sawasdee NSP is a premium commercial development by Galaxy Group, strategically located in Netaji Subhash Place (NSP), Delhi’s prominent business district. Spanning approximately 3,612 sq. meters, the project offers a blend of retail shops and office spaces, designed with modern architectural features including a contemporary façade and elevation.
Located in the heart of Delhi, this commercial space offers excellent connectivity to major roads and the nearby NSP Metro Station. It comes with modern amenities like high-speed elevators, air-conditioning, ample parking, 24×7 security, CCTV surveillance, fire safety systems, and clean, well-maintained facilities. With a mix of retail and office spaces, it’s designed to suit a variety of business needs, making it a smart choice for both convenience and growth.
-
Land Area
3612 SQ.MTR. -
Price
1 Crore - 10 Crore -
Unit
Commercial
Amenities

Highlights
The location of the development is at the centre of the entire district, and is surrounded by the DDA park (backside), other buildings and a 9-metre road (front). It is 0.5 km from the NSP Metro Station, 0.2 km from the NSP bus stand, and 0.5 km from Delhi Haat – therefore exhibiting excellent connectivity and accessibility.
Type - Commercial
Status - Under Construction
Land Area - 3612 SQ.MTR.
Location - Netaji Subash Place
Unit - Retail Shop, Office Space
Price Range - 1 Crore - 10 Crore
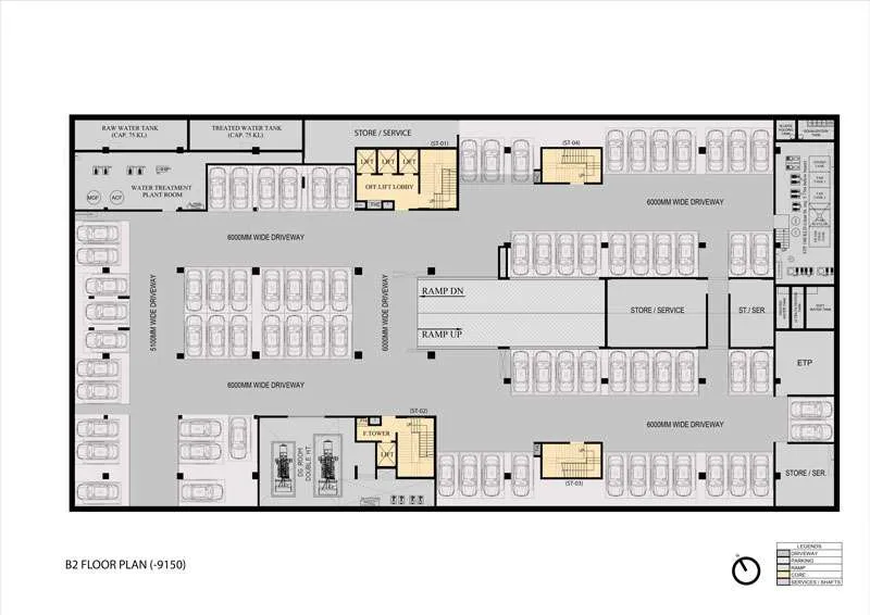
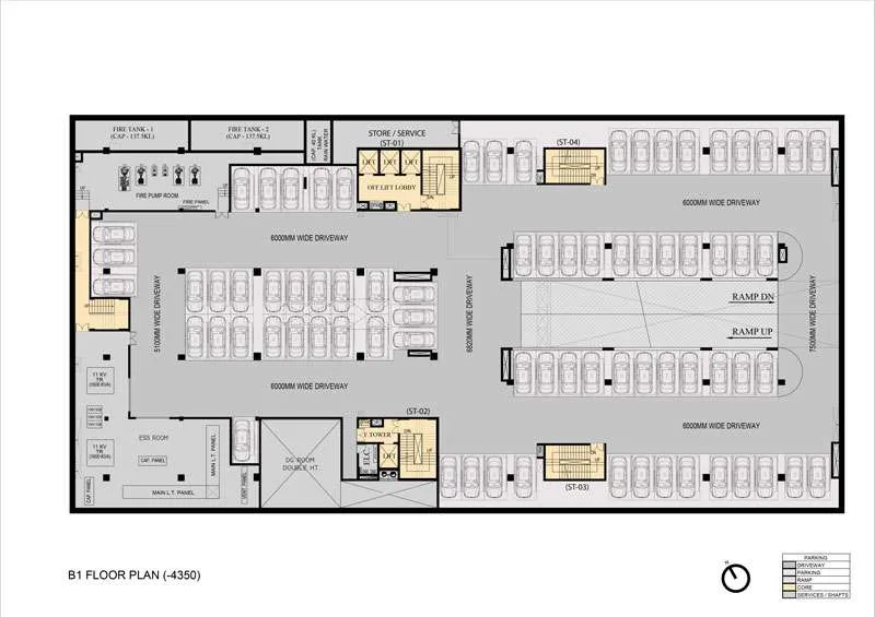
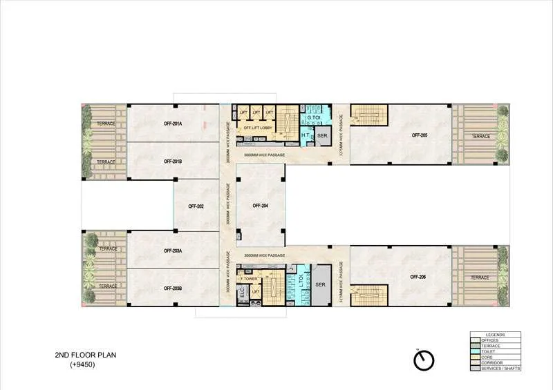
Floor Plans
Photo Gallery
Location Advantages
Loan EMI Calculator
Equated Monthly Installments (EMI)
₹0
Break-up of Total Payment
- Loan Amt ₹0
- Interest Amt ₹0
- Total Payable ₹0






















