Overview
Sawasdee Gems is a premium commercial development by Galaxy and Sawasdee Group, strategically located in Paschim Vihar, West Delhi. Spanning approximately 2,166 square meters, this under-construction project offers a blend of retail shops, food court, office spaces, and a multiplex, catering to diverse business and entertainment needs.
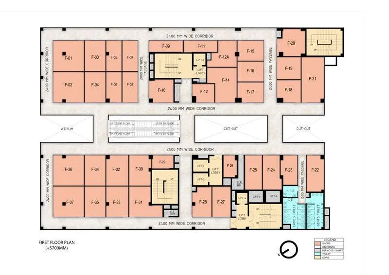
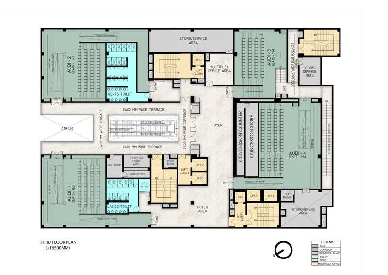
This development showcases modern architecture with a sleek, contemporary façade crafted from durable and sustainable materials. Spanning 2.2 lakh sq. ft., it is designed to function as a vibrant retail and entertainment hub, offering retail shops, a food court, restaurants, and a 4-screen multiplex in collaboration with Kanakia Cinemas. From the 7th to the 16th floor, thoughtfully planned office spaces provide ample workspace options for businesses. The project is equipped with modern restroom facilities, advanced security systems, CCTV surveillance, ample parking, and a spacious atrium that allows abundant natural light to filter through. Strategically located in a well-established residential and business suburb near Jwala Heri market, it ensures strong connectivity and consistent footfall.
-
Land Area
2166 SQ.MTR -
Price
40 Lakh - 35 Crore -
Unit
Residential
Amenities

Highlights
Sawasdee Gems is a retail and office development that will consist of the best of facilities. It is inspired by modern architecture and therefore will feature a contemporary, sleek, and appealing façade. The 2.2 lakh square feet mall will include retail shops, a food court, and restaurants along with a 4-screen multiplex already tied up with Kanakia Cinemas. Furthermore, there will be office spaces from the 7th floor up to the 16th floor. The mall finishes will be of high quality, using durable and sustainable materials, and a large atrium allowing maximum natural light. Amenities include modern restroom facilities, sophisticated security controls, CCTV surveillance, and ample parking spaces.
Type - Commercial
Status - Under Construction
Land Area - 2166 SQ.MTR.
Location - Paschim Vihar, Delhi
Unit - Retail Shop, Studios Office Space, Multiplex
Price Range - 40 Lakh - 35 Crore
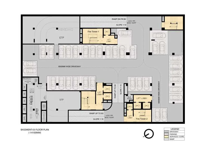
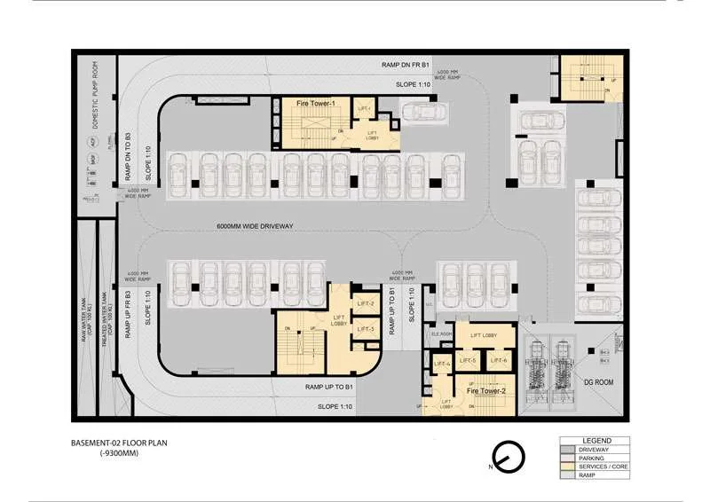
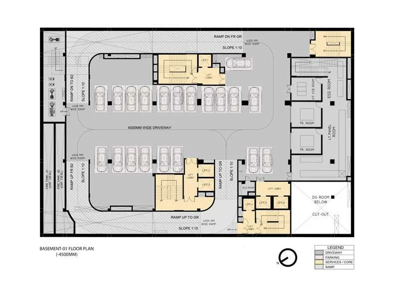
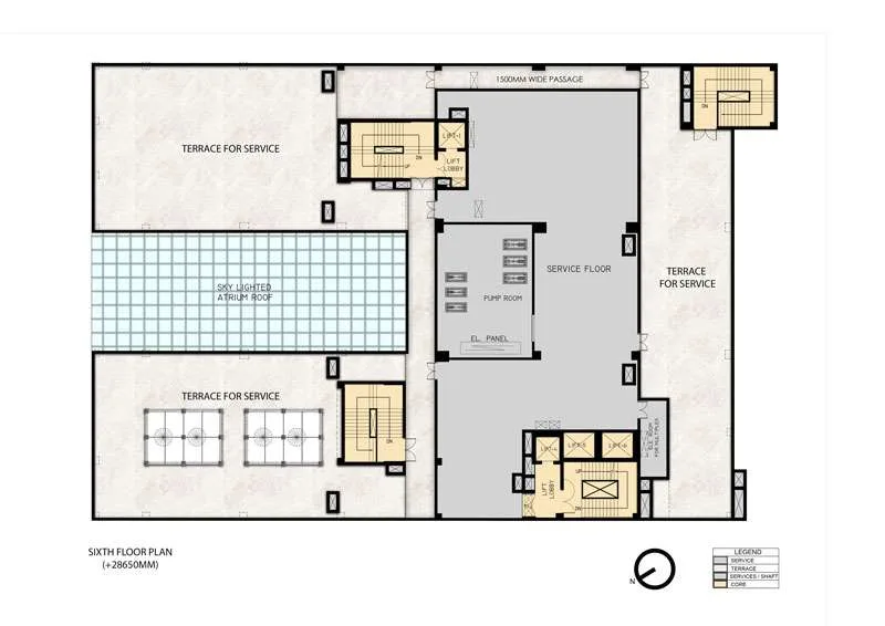
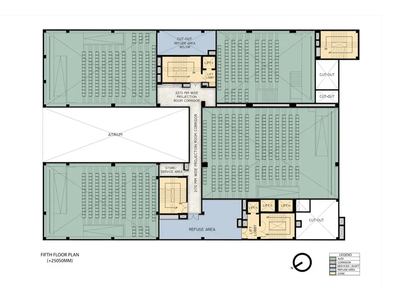
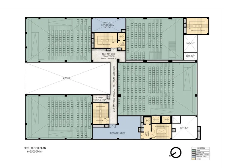
Floor Plans
Photo Gallery
Location Advantages
Loan EMI Calculator
Equated Monthly Installments (EMI)
₹0
Break-up of Total Payment
- Loan Amt ₹0
- Interest Amt ₹0
- Total Payable ₹0











